
Esquema Unifilar Eléctrico: Vivienda, Cuadro y Simbología
El esquema unifilar (también conocido habitualmente como diagrama unifilar) es el DNI de cualquier instalación eléctrica. Es una representación gráfica simplificada donde un solo trazo de línea agrupa a todos los conductores del circuito (Fase, Neutro y Tierra). Ya sea para entender el cuadro eléctrico de tu casa o para presentar el documento oficial de legalización (Boletín/CIE), saber interpretar este plano es fundamental.

| Elemento Clave | Representación en el Plano | Función en la Instalación |
|---|---|---|
| Línea Principal | Un solo trazo continuo | Agrupa todos los cables (Fase, Neutro, Tierra) |
| Marcas Oblicuas | Pequeñas rayas cruzando la línea (ej. ///) | Indican el número exacto de cables físicos en ese tubo |
| Símbolos (PIAs, IGA) | Simbología específica unifilar | Muestran las protecciones del cuadro eléctrico |
| Etiquetas de Texto | Textos alfanuméricos (ej. 2x2,5+2,5Tubo 20, C1, C2, ...) | Indican la sección del cable, diámetro de tubo y tipo de circuito |
Aunque es menos detallado que un esquema multifilar, el unifilar resulta más funcional para proyectos de obra, ya que facilita la interpretación global del sistema eléctrico y su relación con la estructura del edificio o instalación.
Como los esquemas unifilares reducen todos los conductores de un tramo a una sola línea, su correcta interpretación requiere familiaridad con este tipo de esquemas.
La elaboración exige el empleo de símbolos unifilares específicos, tales como el interruptor unifilar, el enchufe unifilar, el pulsador unifilar, el conmutador unifilar, el diferencial unifilar, etc. Todos estos símbolos se pueden consultar en la tabla de símbolos eléctricos básicos.
Los esquemas unifilares topográficos sitúan los elementos en el espacio (interruptores, enchufes, etc.) dentro de planos arquitectónicos. En cambio, los esquemas de cuadros eléctricos detallan las cargas y características técnicas de cada circuito (protecciones, secciones, etc.), sin indicar su ubicación física.
En definitiva, los esquemas unifilares son indispensables en la ingeniería eléctrica, constituyendo la base para la elaboración de los planos eléctricos.
Contenidos
Esquema Unifilar de una Vivienda (Diagrama de una Casa)
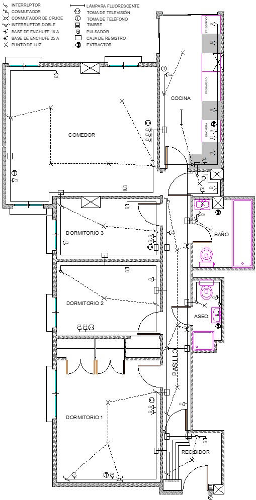
El esquema eléctrico unifilar de una vivienda es la representación más común y estandarizada para electricistas y técnicos. No solo muestra la configuración lógica de los circuitos, sino que, cuando se combina con un plano en planta, se convierte en un esquema topográfico unifilar.
Este tipo de diagrama unifilar es fundamental, ya que indica físicamente la ubicación y el trazado de los diferentes elementos eléctricos dentro de la vivienda, como cajas de derivación, tomas de corriente, interruptores y puntos de luz.
Para su correcta elaboración, es imprescindible contar con un plano en planta de la vivienda. Este sirve como base sobre la cual se superponen los símbolos y líneas del esquema, permitiendo una visualización precisa de la instalación real. Esto facilita enormemente las labores de diseño, instalación, y posterior mantenimiento.
Características del Esquema Eléctrico Unifilar de una Vivienda
El esquema unifilar topográfico suele incluir una leyenda que explica los símbolos utilizados. Esto asegura que el plano sea claro y legible para cualquier profesional. Junto al símbolo se realiza una breve descripción, como punto de luz, toma de corriente, interruptor, conmutador, etc.
Un aspecto clave de este circuito unifilar es que, no solo muestra la ubicación física, sino también la relación entre los elementos. Por ejemplo, la conexión entre un interruptor de pared y el punto de luz que controla se representa mediante líneas discontinuas. Esto visualiza la dependencia funcional entre ambos componentes.
En todas las tomas de corriente representadas en el esquema unifilar de la vivienda unifamiliar, se indica el circuito del cual dependen (C2, C3, C4, C5, etc.). Esta identificación es fundamental para la correcta protección de cada línea y para futuras labores de mantenimiento o ampliación.
El plano unifilar muestra el Cuadro General de Mando y Protección (CGMP) situado junto a la entrada, que actúa como el centro neurálgico de la instalación. Desde él parten los circuitos independientes, que quedarán protegidos, cada uno, por su interruptor automático (PIA) y, en su caso, por un interruptor diferencial (ID).
Ejemplo de Vivienda con Electrificación Básica (C1 al C5)
La electrificación básica en una vivienda se divide en un mínimo de 5 circuitos independientes, cada uno con su propia protección en el CGMP. El diagrama unifilar eléctrico muestra cómo estos circuitos parten del CGMP y se distribuyen por las diferentes estancias.
A continuación, se presenta y describe el esquema unifilar de una vivienda con electrificación básica (hasta 5.750 W de potencia prevista), desarrollado conforme a lo establecido en el REBT y sus ITCs:
1º) Circuito C1 (Iluminación): alimenta todas las luminarias, mostrando en el plano su recorrido desde el cuadro general hasta los interruptores y puntos de luz, conectados con líneas discontinuas.
2º) Circuito C2 (tomas de corriente de uso general): alimenta las tomas de corriente de las habitaciones, el salón, el recibidor el pasillo y algunas específicas en la cocina. En el diagrama, cada toma de corriente está claramente marcada con el circuito al que pertenece, por ejemplo, toma de corriente C2.
3º) Circuito C3 (cocina y horno): suministra energía específicamente a la encimera y el horno, con dos tomas dedicadas. En este caso, se observa en el plano que se han instalado 2 tomas C3.
4º) Circuito C4 (lavadora, lavavajillas y termo eléctrico): conectado a los electrodomésticos de la zona de lavandería y cocina. Cada toma de corriente de estos aparatos lleva la indicación C4.
5º) Circuito C5 (baños y tomas auxiliares): está reservado para las tomas de corriente de los baños y las tomas de corriente auxiliares de la cocina.
Si bien la normativa exige que cada circuito discurra por tubos independientes, las cajas de registro se utilizan como puntos comunes para el paso de los conductores y la realización de las derivaciones y empalmes entre los diferentes circuitos.

Diagrama del Cuadro General de Mando y Protección (CGMP)
El esquema eléctrico unifilar de cuadro eléctrico detalla la conexión interna de todos los circuitos de un cuadro eléctrico. Incluye información sobre los tipos de protección (magnetotérmicos y diferenciales), las secciones de los conductores y las características de las cargas.
Este tipo de esquemas son fundamentales para la instalación, mantenimiento y modificación de cuadros eléctricos. Con esta representación se seleccionan los dispositivos de protección adecuados y se dimensionan los conductores de acuerdo con las cargas conectadas.
Para simplificar, no suele representarse gráficamente el conductor de protección con el trazo oblicuo correspondiente. Se añade la sección de este conductor junto con la sección de los conductores activos (fase y neutro), asumiendo que forma parte del circuito.
Por ejemplo, en el diagrama unifilar de una vivienda se muestran todos los circuitos de la vivienda, incluidos sus elementos de protección y sus calibres, las secciones de los conductores y diámetro de los tubos, y el nombre de todos los circuitos.
En la siguiente figura se muestra el diagrama unifilar eléctrico de una casa de electrificación básica. Se trata del esquema unifilar de vivienda más básico, en el cual, el circuito C4 no está desdoblado.

Cómo Dibujar e Interpretar el Esquema Unifilar
Para pasar de simplemente "mirar" un plano a saber diseñarlo o leerlo como un profesional, es necesario conocer las reglas del juego. Trazar un diagrama unifilar no consiste en hacer líneas al azar, sino en aplicar una normativa gráfica estandarizada (como la IEC) que garantice que cualquier instalador entienda nuestro proyecto sin necesidad de explicaciones adicionales.
A continuación, vamos a desglosar las propiedades fundamentales que definen a estos esquemas técnicos y el método paso a paso para trazarlos desde cero, evitando los errores más comunes de diseño.
Características del Diagrama Unifilar
Las principales características de los esquemas unifilares son las siguientes:
● Representación simplificada: en los esquemas unifilares, una única línea representa a todos los conductores de un tramo, incluidas las fases, el neutro y el conductor de protección (tierra).
● Trazos indicativos de conductores: el número de conductores (fases, neutro y tierra) se indica mediante trazos oblicuos a 45° sobre la línea del tramo. Por ejemplo, 3 trazos pueden indicar fase, neutro y conductor de protección.
● Símbolos específicos: los símbolos utilizados en los esquemas unifilares son específicos para esta representación y se adaptan a la necesidad de simplificar la información visual. Por ejemplo, luminarias, interruptores y tomas de corriente tienen su simbología particular.
● Contexto espacial: los esquemas unifilares pueden incluir información sobre la ubicación física de los elementos en el plano arquitectónico (como en los esquemas unifilares topográficos), integrando funcionalidad y diseño espacial.
● Indicaciones textuales complementarias: para compensar la falta de detalle en las conexiones específicas, los esquemas unifilares suelen incluir información adicional, como nombres de circuitos, tipos y calibres de las protecciones instaladas, secciones de los conductores y dimensiones de las canalizaciones.
● Adaptación a variantes: existen versiones más simplificadas de los esquemas unifilares, utilizados en circuitos simples o con conexiones estándar que no requieren una representación tan detallada.
Cómo Dibujar el Diagrama Unifilar
Aunque se trata de un esquema simplificado por naturaleza, es importante asegurarse de que todos los elementos del esquema unifilar eléctrico estén claramente representados y anotados.
En algunos esquemas unifilares se acompañan textos descriptivos que explican los circuitos y elementos representados, especialmente en proyectos complejos.
Hay una serie de pasos comunes para realizar un esquema unifilar. No obstante, al tratarse de un diagrama tan versátil, cada esquema puede tener sus particularidades, según el caso.
A continuación, se describe la técnica y procedimiento general para su elaboración:
1º) Planificación del diseño: se ha de analizar la instalación eléctrica para identificar todos los elementos y circuitos necesarios.
2º) Representación de conductores: las líneas de alimentación principales (fases, neutro y tierra) suelen colocarse en la parte superior o lateral del esquema. A continuación, se dibujan líneas continuas que conecten los diferentes componentes eléctricos. Después, se indica el número de conductores en cada tramo mediante trazos oblicuos.
3º) Incorporación de símbolos normalizados: se deberá utilizar simbología unifilar normalizada para garantizar claridad y comprensión universal del esquema. Cada símbolo suele ser identificado con letras de referencia asociadas al componente real. Generalmente, no es necesario el marcado de bornes individualmente.
4º) Anotaciones técnicas: se pueden agregar detalles técnicos, como en los esquemas unifilares de cuadros eléctricos, en los que se indica, nombre del circuito o receptor, intensidad nominal (calibre) de los dispositivos de protección, sección y tipo de conductores, dimensiones de canalizaciones, descripción de cargas conectadas, etc.
5º) Distribución lógica y clara: organizar los elementos en el esquema de manera que se pueda interpretar fácilmente la relación funcional entre ellos.
Tipos de Esquemas Unifilares
Hay muchas variantes de esquemas unifilares dependiendo del nivel de detalle requerido. Se pueden encontrar desde esquemas muy simplificados, orientados a una representación general del sistema, hasta esquemas muy completos, que incluyen toda la información técnica.
Nos centraremos en 3 tipos de esquemas unifilares muy utilizados, el esquema unifilar simplificado, el esquema unifilar topográfico y el esquema unifilar de cuadros eléctricos.
Esquema Unifilar Simplificado
No todas las instalaciones requieren el mismo nivel de detalle. Por ello, en ciertos contextos, se han desarrollado variantes simplificadas de los esquemas unifilares, diseñadas específicamente para facilitar la interpretación y la ejecución en casos donde el conectado es sencillo o no supone un desafío técnico significativo.
Estos esquemas son útiles durante las fases preliminares de un proyecto eléctrico para presentar una visión general del sistema sin entrar en detalles técnicos que puedan ser desarrollados posteriormente.
Sirven también como material introductorio para estudiantes y técnicos en formación, ayudándoles a comprender las relaciones básicas entre los elementos eléctricos sin sobrecargar de información.
En los esquemas unifilares simplificados se suelen omitir datos técnicos extensos, como la sección de los conductores, el tipo de canalización y, en ocasiones, las protecciones específicas, a menos que sean críticas para la comprensión del esquema. En los esquemas más simplificados incluso se suprime el número de conductores.
Estos esquemas no se suelen representar en planos en planta o alzado, ya que su función principal es mostrar la estructura general del circuito. Tampoco suele ser importante la posición relativa entre sus componentes, ya que lo que se prioriza es la representación del número y tipo de elementos necesarios para el funcionamiento del circuito.
Se muestran a continuación varias variantes de un esquema unifilar simplificado de un circuito conmutado con punto de luz de 3 lámparas, evidenciando la flexibilidad de este tipo de representación:




Esquema Unifilar Topográfico
El esquema unifilar topográfico combina la representación gráfica de un circuito eléctrico con un plano arquitectónico, incorporando la situación de los elementos eléctricos en planta, alzado o perspectiva de un edificio.
Este tipo de esquemas sirven para coordinar la instalación eléctrica con la estructura del edificio, evitando conflictos con otros sistemas, como fontanería o climatización. Con este esquema se realizan mediciones y cálculos.
El esquema unifilar topográfico es fundamental para el instalador, ya que representa la instalación considerando las distancias reales entre estancias. Permite calcular con exactitud los metros de cable y tubo necesarios.
Además, detalla por qué cajas pasan las líneas, qué habitaciones comparten circuito y cómo se ramifican desde el cuadro general, indicando también el número de conductores en cada tramo.
El esquema eléctrico unifilar topográfico puede representarse de diversas maneras, dependiendo de las necesidades del proyecto y el nivel de detalle requerido. Las opciones más comunes suelen ser sobre un plano en planta o sobre una pared o alzado.
Esquema Unifilar Topográfico Sobre un Plano en Planta
Esta es la forma más habitual de representar un esquema topográfico unifilar. El plano muestra la distribución de los circuitos eléctricos (como interruptores, lámparas y tomas de corriente) en una vista horizontal o en planta. El uso de letras para identificar componentes es opcional y no siempre se emplea.
A continuación, se muestra un ejemplo, del plano de la habitación de una vivienda que muestra la ubicación de los recorridos de los circuitos de iluminación y tomas de corriente.
La interpretación correcta de este esquema requiere comprender la segmentación típica de los circuitos en una vivienda. Es fundamental conocer que el circuito de iluminación suele estar separado del circuito de tomas de corriente. Esto implica que las líneas de fase (L), neutro (N) y tierra (T) que alimentan cada circuito tendrán orígenes distintos desde el cuadro eléctrico.
Asimismo, es necesario dominar las conexiones específicas de los conmutadores para implementar correctamente los circuitos de iluminación conmutada. También, saber que a las lámparas y tomas de corriente siempre han de llegar la fase (L), el neutro (N) y la tierra (T).

Esquema Unifilar Topográfico Sobre una Pared o Alzado
El esquema unifilar se dibuja en una vista vertical, representando la ubicación de los elementos eléctricos en un panel o pared específica.
Esta representación es común para instalaciones como tableros de distribución, luminarias o elementos montados en pared, y facilita la planificación de la instalación física en un espacio concreto. Es habitual identificar los componentes con letras de referencia para facilitar su identificación.
Por ejemplo, el plano sobre un panel o tablero en el que se representa la ubicación de un circuito de luz conmutado y un circuito de tomas de corriente.
Igualmente, para entender este esquema, se debe conocer que las lámparas y las tomas de corriente tienen circuitos independientes y requieren fase, neutro y tierra. Además, las conexiones de los conmutadores son específicas de este tipo de circuitos.

Ejemplos de Esquemas Unifilares Eléctricos
En los siguientes apartados, exploramos algunos ejemplos concretos de esquemas eléctricos unifilares simplificados, analizando brevemente su funcionamiento.
● Esquema unifilar de punto de luz simple: en el esquema eléctrico de interruptor debemos cerrar el interruptor para encender la lámpara o abrirlo para apagarla.

● Esquema unifilar de luz conmutada simple: en el esquema de interruptor conmutado, los 2 conmutadores, permiten encender y apagar la lámpara desde 2 puntos diferentes. Al accionar cualquiera de ellos, se invierte el estado de la lámpara.

● Esquema unifilar de luz conmutada de cruce: en el esquema de interruptor de cruzamiento, los 3 conmutadores (dos normales y uno de cruce), permiten controlar una lámpara desde 3 puntos diferentes. Al accionar cualquiera de ellos, se invierte el estado de la lámpara.

Ventajas del Diagrama Unifilar
El esquema eléctrico unifilar tiene diversas ventajas, siendo las principales las siguientes:
● Simplicidad de representación: permite visualizar rápidamente la disposición general de un circuito eléctrico sin necesidad de interpretar complejas conexiones individuales.
● Instalación en el diseño de obras: es ampliamente utilizado para representar circuitos en planos de edificios, facilitando el diseño y la instalación de canalizaciones y elementos eléctricos.
● Optimización del espacio en planos: al no requerir la representación de cada conductor por separado, el circuito unifilar ocupa menos espacio en los planos, siendo muy útil en proyectos de gran escala.
● Guía de ejecución: sirve como referencia para los instaladores, quienes pueden identificar rápidamente la ubicación de canalizaciones y elementos eléctricos en el lugar de trabajo.
Aplicaciones del Diagrama Unifilar
Los esquemas unifilares tienen una gran variedad de aplicaciones. Entre las más usuales están las siguientes:
– Diagrama unifilar de un edificio: representar circuitos eléctricos en planos arquitectónicos para coordinar su instalación con otras disciplinas (fontanería, climatización, etc.).
– Esquemas unifilares de cuadros eléctricos: diseñar el esquema unifilar de un cuadro eléctrico para identificar las cargas conectadas, los elementos de protección y los conductores asociados.
– Diagrama unifilar residencial: documentar la distribución de tomas de corriente, luminarias y circuitos de fuerza en viviendas.
– Proyectos industriales: representar circuitos principales y secundarios en fábricas, almacenes y plantas de producción.
– Mantenimiento eléctrico: utilizar los esquemas como referencia para realizar inspecciones, reparaciones o ampliaciones en instalaciones existentes.
Preguntas Frecuentes sobre el Esquema Unifilar
También te puede interesar:

Circuito Eléctrico Básico (Simple): Qué es, Partes y Diagrama

Símbolos Eléctricos y Simbología Normalizada: Guía e Imágenes

Esquema Funcional Eléctrico (Diagrama de Funcionamiento): Qué es

Esquema Multifilar: Diagrama de Conexiones y Montaje

